Poválečné fortifikace\Protivzdušná obrana státu\8. plro Omice (76.plrb), S-125M

8. protiletadlový raketový oddíl Omice, podřízený brněnské 76. plrb

76. protiletadlová raketová brigáda zřízená v roce 1961 k zajištění raketové obrany vzdušného prostoru nad městem Brnem byla po pražské 71. plrb (od 1959) druhou brigádou vybudovanou v rámci PVOS ČSSR. Od počátku byla v podřízenosti brněnské 2. divize PVOS. Za dlouhé období působení 76. plrb byly její oddíly postupně vyzbrojovány protiletadlovými raketovými komplety SA-75M Dvina, S-75M Volchov, S-125 Něva a S-200 Vega s cílem zabezpečení obrany svěřeného vzdušného prostoru permanentně a v celém výškovém rozsahu.

Následující článek se blíže zaměřuje na jednu ze základen, zajišťujících vnitřní kruhovou obranu Brna (5., 6., 7. a 8. plro), na 8. plro v Ořechově. Základna tohoto útvaru vykazuje všechny prvky typické pro oddíly vyzbrojené kompletem S-125M v ČSLA. První základny pro PLRK S-125 byly budovány od počátku 70. let v rámci 71. plrb Praha, postupně poté u 76. plrb Brno a naposled v 80. letech u 186. plrb Pezinok.

GPS souřadnice objektu:
49°10'51.67"N,16°26'33.88"E

Terénní průzkum:

6 až 7/2003, R. Zedníková

Fotodokumentace:

6 až 7/2003, R. Zedníková

Oddíl vznikl k 1. září 1978, stavební činnost v Omicích na "Hvízdalce" (kóta 442 m n.m.) však započala již v roce 1976, pod krycím názvem radiotechnická hláska RTH-16.

 

 

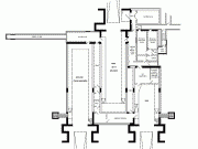
Plán plro, VPÚ, 1980

Legenda pro situační plán a ortofotomapu:

01) příprava území

02) příjezdová komunikace

03) přípojka vysokého napětí

04) rekonstrukce (přeložka) vysokého napětí

05) trafostanice

06) oplocení areálu

07) ubytovací monoblok - budova týlového zabezpečení
základny - ubikace, kuchyň
(tzv. "Rota")

08) II - zodolněný okop v týlovém sektoru pro prázdný
přepravník TZM PR-14 (pro případ nutnosti vybití rakety
z některé odpalovací rampy)

09) X - přípojka dálkového kabelového vedení (zajišťující
spojení s nadřízeným velitelstvím)

10) přístřešek na odpad

11) vodovod

12) čerpací stanice vody

13) čistírna odpadních vod

14) kanalizace

15) lapač tuku

16) vodojem

17) rozvod silnoproud

18) vnější osvětlení

19) anténní systém

24/1) čerpací stanice č. 1

24/2) přípojka nízkého napětí

25) I - objekt velitelského stanoviště

26) zodolněné postavení pro podvozek KZU-16
s UNV (anténní část naváděcího radaru NRL-125)
- objekt III

27) IV - zodolněný objekt pro kabinu aparatury radioreleového
spojení 5Ja62 Cyklojda, anténní kabina s anténou stála
venku mimo okop

28) Vc1, Vc2 - zodolněný dvouloďový podpovrchový objekt
pro protiletadlové rakety 5V27 (V-601), kterými byl oddíl
předzásoben (byly uloženy na těležkách)

29) Ve - zodolněné okopy (dvojité), každý pro dva naložené
nabíjecí přepravníky TZM PR-14 (na podvozku Zil-131),
každá palebná četa (celkem 4) měla dvě TZM

30) VI1-4 - čtveřice palpostů pro odpalovací rampy 5P73
(SM-106) obehnaných zemním valem. Každý palpost
odpovídá jedné ze čtyř čet protiletadlového oddílu

31) VIII - zodolněný objekt pro řídídící radiolokátor P-15
s UNŽOU. UNŽA byla mimo okop a byla určena
pro zvýšení dosahu na nízkoletící cíle

32) XI - budova pro odpočinek hotovostní směny
(tzv. "Zkrácená")

33) XII1, XII2 - úkryty ÚŽ-6 pro ochranu obsluhy OR
před účinky ZHN (chemickými, jadernými)

34) komunikace uvnitř areálu

35) terénní úpravy

36) rozvod silnoproud

37) rozvod slaboproud

38) strážní signalizace

39) kabelovody sloužící k protažení kabelů pod povrchem
mezi jednotlivými objekty základny

40) kanalizace

41) vodovod

42) autopark - trojice garážových boxů a krytá stání
pro automobilní techniku útvaru (podvozky, tahače)

43) odstavná a mycí plocha

44) sklad PHM

45) lapač benzínu

46) maskování

46/1) klamný objekt č. 1

46/2) klamný objekt č. 2

46/3) klamný objekt č. 3

Letecký snímek se zákresem objektů 8.plro ve stavu z roku 2003

Situační plán 8.plro Omice
datovaný do března 1980,
vypracovaný Vojenským projektovým
ústavem Bratislava

Ortofotomapa 8.plro Omice
ve shodném měřítku jako plán,
aktuální k roku 2003

Půdorys velitelského stanoviště (objekt I) Originál technického výkresu řezu velitelským stanovištěm (objekt I)

Zjednodušený půdorys
objektu VS (I),
včetně popisu
jednotlivých místností

Příčný řez objektem VS (I)

Originál technického výkresu řezu velitelským stanovištěm (objekt I) Originál technického výkresu řezu velitelským stanovištěm (objekt I)

Příčný řez sálem pro EC
(elektrocentrály) v objektu I

Příčný řez sálem pro UNK
(kabinu řízení) v objektu I

Originál technického výkresu řezu velitelským stanovištěm (objekt I)  

Pohled na portál
jednoho ze sálů (zvaných "lodí")
objektu I

 
Ubytovací monoblok Monoblok - vstupní část Centrální schodiště Dveře do jídelny

Ubytovací monoblok

Monoblok - vstupní část

Centrální schodiště

Dveře do jídelny

Místnost v ubytovací části budovy monobloku Místnost v ubytovací části budovy monobloku Brána do sektoru "C" Prostřední sál objektu VS

Místnosti v ubytovací části budovy monobloku
(II. nadzemní patro)

Brána do sektoru "C"
(bojová část útvaru)
Prostřední sál objektu VS,
nalevo "zkrácená",
budova pro hotovostní směnu na VS
Vrata do sálu pro PRM/5F24/RKU (UNS) Hlavní vstup do VS (objekt I) Portál sálu pro UNV Portály objektu Vc2
Vrata do sálu
pro PRM/5F24/RKU (UNS)

Hlavní vstup do VS (objekt I)

Portál sálu pro UNV

Portály objektu Vc2
Portály objektu Vc1 Posuvná silnostěnná vrata Detail uchycení vrat Skladovací sál objektu Vc1
Portály objektu Vc1 Posuvná silnostěnná vrata Detail uchycení vrat Skladovací sál objektu Vc1
Klamná budova Okop pro odpalovací rampu Garáže pro automobilní techniku, čerpací stanice PHM
Klamná budova Okop pro odpalovací rampu
(objekt VI)
Garáže pro automobilní techniku, čerpací stanice PHM

Situace revitalizačního návrhu
Situační plán
revitalizačního návrhu

Téměř 30 let po výstavbě a 10 let po zrušení 7. plro se areál stal inspirací pro jeden z průkopnických ideových návrhů revitalizace lidmi poznamenaných a dnes již opuštěných prostor (dnes diskutovány pod pojmem "brownfields").

Studie rekreačního a ubytovacího areálu od ing. arch. Radky Zedníkové (ateliér OOOOX) je unikátní právě koncepcí změny funkce celého areálu bez podstatných zásahů do konstrukcí zodolněných objektů. Naopak, snaha je využít veškerý potenciál stávajících objektů i komunikací a tomu přizpůsobit nové využití. Projekt revitalizace je úzce spjat s plánovanou výstavbou rozsáhlé rezidenční čtvrti na katastru obce Omice.

Například objekt velitelského stanoviště je dle návrhu adaptován na relaxační centrum (bazén, sauna, masáže, venkovní koupaliště a letní terasa s barem na stropnici v místě někdejšího stanoviště RL). U dalších objektů se počítá se přeměnou v posilovnu (Vc1), noční klub (Vc2) či kosmetický salon (IV). Ubytovací kapacitu penzionu krom přestavby monobloku doplňují novostavby zemních bungalovů.

Vizualizace VS po rekonstrukci na relaxační centrum Objekt I - řez interiérem s vyznačenými úpravami Adaptace palpostu 2 Adaptace palpostu 3

Vnější podoba objektu VS (I/III)
zůstala, až na dostavbu vchodů
a letní terasy,
takřka nedotčena

Úprava interiérů VS
pro umístění relaxačního centra

Palebné postavení 2,
po rekonstrukci divadelní scéna

Palebné postavení 3,
po rekonstrukci hudební aréna

zdroje: - REVITALIZACE RAKETOVÉ ZÁKLADNY: Ing. Radka Zedníková,
  diplomní projekt, FA ČVUT, 2005

autor: Petr Kunc

Původní článek z 1. září 2008
již nebyl později upravován

»Navigace«


ČS. opevnění 1935-38

Drážní archologie
Technické památky
Historické fotografie

Autoři příspěvků:

Petr Janda
Martin Korec
Petr Kunc
ISSN 1803-5493

Partneři projektu:

Petr Kunc ©2004 - 2011